- House type: Semi Detached
- Size: 84 m²
- Bedrooms 3
- Status
- BER Rating

- BER Number 106450869
- Options
Print Brochure
- Description: Duffy Auctioneers take great pleasure in presenting to the market this magnificent three bed family home strategically located in the popular residential area of Huntstown Clonsilla. Well-proportioned accommodation coupled with stylish interiors combine to entice a variety of discerning purchasers. This unique family home has been designer decorated with taste and flair throughout and boasts bright and spacious accommodation of c 900 sq. ft. Accommodation briefly comprises of entrance hallway with wooden floor and guest toilet, stunning living room with feature fireplace and wooden floor, a superb newly fitted designer kitchen with wooden floor and door to the spacious back garden. The upstairs accommodation is exceptional boasting three large bedrooms all with wooden floor and a newly fitted family bathroom. This superb location is only minutes away from all local amenities and services including the Blanchardstown Shopping Centre, the M50/N3 Motorway, and a host of local amenities such as schools, shops, and frequent public transport to the city centre. Viewing is highly recommended!
- Area: 84
- Features:
Stunning three bed family home c 900 Sq. ft.
In excellent condition with many extras included in sale
Newly fitted kitchen with all appliances included in the sale.
Wonderful living room with feature fireplace and wooden floor.
Three large bedrooms with fitted wardrobes.
Newly fitted family bathroom with bath and shower over.
Beautiful dining area with wooden floors and views of back garden.
Wooden Floors in all reception areas.
Spacious back garden southwest facing.
Within five minutes walking distance of schools and shops.
Gas Fired Central Heating.
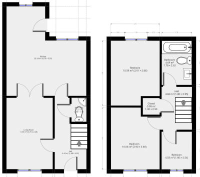
- Bedroom 1: Bedroom 1. (4.04m x 2.95m)
Large double bedroom with fitted wardrobes and wooden floor.
- Bedroom 2: Bedroom 2. (3.32m x 3.m)
Double bedroom with fitted wardrobes and wooden floor.
- Bedroom 3: Bedroon 3. (2.79m x 1.83m)
Single bedroom with wooden floor
- Living Room: Living room (4.92m x 3.01m)
Wonderful bright and spacious room with wooden floor and feature fireplace.
- Dining Room: With wooden floor.
- Kitchen: Kitchen/Dining room (5.04m x 4.79m)
Fully fitted designer kitchen with wooden floor and tiled splashback.
Bright and spacious dining area with wooden floor with back door to the spacious garden.
- Bathroom: Family Bathroom. (2.01m x 1.67m)
Newly Fitted Bathroom comprising bath with shower over, w.c. and w.h.b.
- Hall: Entrance hallway (4.28m x 1.69m)
Entrance hallway with guest toilet, wooden floor.
Guest toilet (1.38m x0.70m)
With tiled floor, w.c and w.h.b.
- Outside: Large back garden south west facing.
Location Map
QR Code