- House type: Semi Detached
- Size: 111 m²
- Bedrooms 3
- Status
- BER Rating

- BER Number 118859750
- Options
Print Brochure
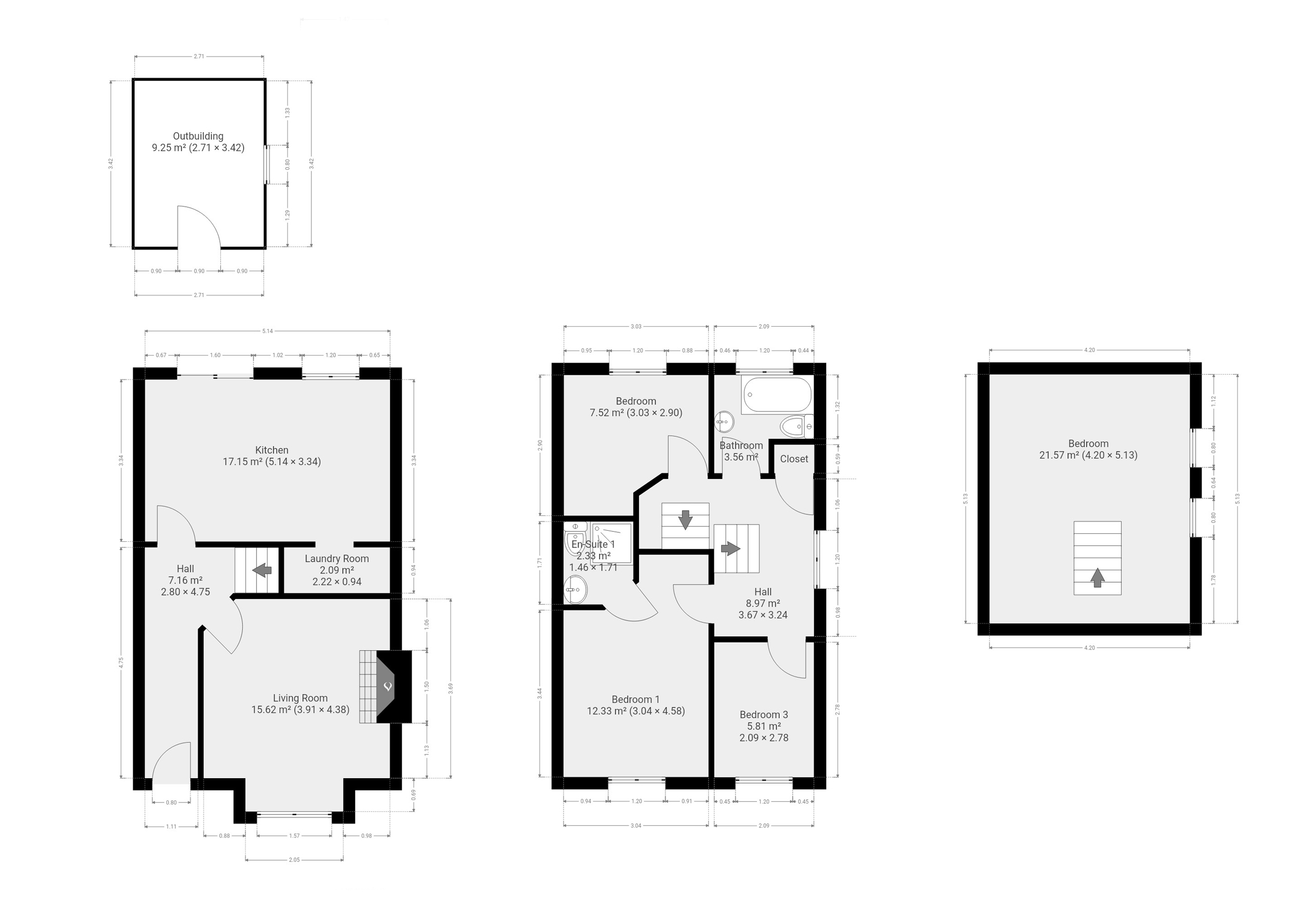
- Description: Duffy Auctioneers take great pleasure in presenting to the market this magnificent three-bed family home with a converted attic strategically located in the popular residential area of Westhaven Clonsilla. This is a superbly located and well positioned family home C 1194 Sq. Ft situated on a superb cul-de-sac, within walking distance of Shops, schools and the Blanchardstown Shopping centre.
Accommodation consists of entrance hallway with wooden floor, bright and spacious living room with feature fireplace and wooden floor. Next door there is a fully fitted kitchen with tiled floor and utility area and patio door to the landscaped back garden with block built shed.
Upstairs off the landing there are three large bedrooms with wooden floor and master ensuite plus a newly fitted family bathroom with jacuzzi bath and shower over.
The superb, converted attic has a carpet floor and is suitable for many uses.
Outside the property is further enhanced by a wonderful side and rear garden with large side entrance suitable for extension or garage ( Subject to P.P.) plus a block built shed with power. There is off street parking for three cars.
Situated just minutes from the Blanchardstown Shopping centre, M50/N3 Motorway, and a host of local amenities such as schools, shops, and frequent public transport links to the city centre. Viewing is highly recommended!
- Area: 111
- Features:
Superb three-bed family home with converted attic. C 1194 Sq. Ft.
In excellent condition with many extras included in the sale
Three large bedrooms all with master en suite.
Large, converted attic with carpet floor and extra storage.
Wonderful living room with wooden floor and feature fireplace.
Fully fitted bright and spacious kitchen with tiled floor.
Newly fitted family bathroom with jacuzzi bath and shower over.
Gas fired central heating.
Double-glazed windows.
Paved back garden with block built shed.
Extra wide side garden, suitable for garage or extension, Subject to p.p.
Excellent off-street parking.
Prime residential location within walking distance of shops and schools.
- Bedroom 1: Bedroom 1. (3.82m x 3.10m)
Large double bedroom with carpet floor and built in wardrobe.
- Bedroom 2: Bedroom 2. (3.21m x 3.30m)
Double bedroom with wooden floor.
- Bedroom 3: Bedroom 3. (2.93m x 2.11m)
Single bedroom with wooden floor.
- Bedroom 4: Converted attic. ( 5.17m x 4.30m)
Stunning room with carpet floor, suitable for many uses
- Living Room: Living room (4.21m x 3.48m)
Large bright room with feature fireplace and wooden floor.
- Dining Room: With tiled floor
- Kitchen: Kitchen/Dining Room (5.25m x 3.20m)
Superb fully fitted Kitchen with tiled floor, ample wall and floor mounted units, dining area with tiled floor and patio doors to landscaped back garden with block built shed. Superb side garden with large side entrance.
- Bathroom: Family Bathroom. (1.94m x 1.94m)
Fully fitted family Bathroom comprising of jacuzzi bath with shower over, W.C., and w.h.b.
- Hall: Entrance hallway (5.03m x 1.20m)
Entrance hallway with wooden floor and alarm control panel.
- Outside: Fully landscaped back garden with block built shed.
Superb side garden with large side entrance.
Location Map
QR Code