€520,000

17 Beechwood Heath, Clonsilla, Dublin 15
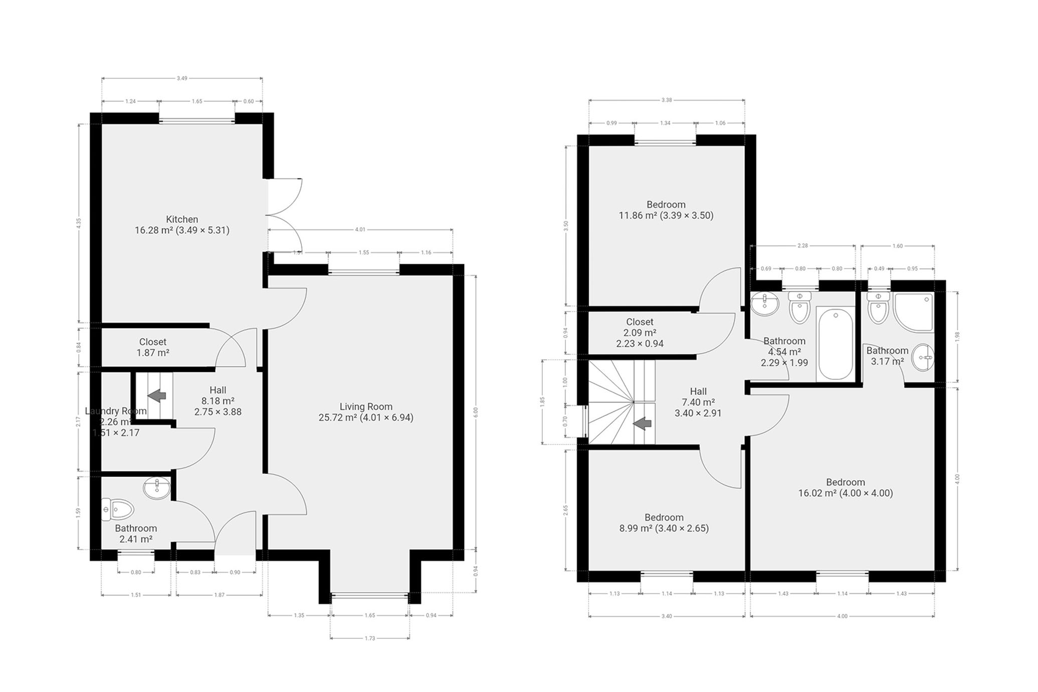
  • Description: Duffy Auctioneers take great pleasure in bringing to the market this truly magnificent, A rated three bed family home superbly located in this highly desirable location just off Barnwell Road and a short walk to Hansfield train station. Presented in showroom condition and finished to an exceptionally high standard throughout, this stunning property enjoys spacious accommodation benefitting from plenty of natural light and surrounded by landscaped gardens. The bright and spacious accommodation of C 1227 Sq. ft has been wonderfully decorated with taste and flair throughout and boasts an array of special features to include superb living room with wooden floor, a fully fitted designer kitchen/dining room with wooden floor and porcelain tiling in the bathrooms with feature lighting in all rooms. The upstairs accommodation is exceptional boasting three large bedrooms with master en-suite and a fully fitted family bathroom with bath and shower over. Outside the property is further enhanced by a wonderful rear garden with side entrance. To the front there is secure off-street parking for two cars. This property has to be seen to be fully appreciated and is sure to appeal to a wide audience. Viewing is highly recommended.
  • Area: 114
  • Features: Spectacular A rated three bed family home.
    In Showroom Condition with many extras included in sale.
    Stunning living room with wooden floors.
    Superb designer fitted kitchen/dining room with wooden floor.
    Separate utility room with extra storage.
    Three large bedrooms with master en-suite
    Fully fitted family bathroom with bath and shower over.
    Private parking for two cars.
    Fully landscaped rear Garden not overlooked with side entrance.
    Prime residential location within walking distance of Hansfield and Clonsilla train station.
  • Bedroom 1: Master Bedroom. (4.05m x 4.m)
    Large double bedroom with fitted wardrobes with wooden floor.
  • Bedroom 2: Bedroom 2. (3.54m x 3.49m)
    Superb double bedroom with built in wardrobes and wooden floor.
  • Bedroom 3: Bedroom 3. (3.44m x 2.55m)
    Large double bedroom with wooden floor and free-standing wardrobes.
  • Living Room: Living Room (6.99m x 3.80m)
    Stunning living room with wooden floors and door to kitchen
  • Dining Room: With wooden floor and patio door to patio and garden
  • Kitchen: Kitchen/dining room (5.62m x 3.59m)
    Fully fitted designer kitchen with ample wall and floor units and wooden floor.
    The kitchen is very well equipped and with an impressive range of integrated appliances.
    Large dining area with wooden floor and double doors to the patio area.

    Utility room (2.41m x 0.78)
    Utility room with white goods and extra storage.
  • Bathroom: Family Bathroom. (2.34m x 1.74m)
    Fully fitted bathroom with porcelain tiled floor and part tiled walls. Bath with shower over, w.c and w.h.b.
  • Hall: Entrance Hallway (3.87m x 1.95m)
    With wooden flooring, alarm and control panel.

    Guest Toilet (1.55m x 1.49m)
    With tiled floor w.c, and w.h.b.

    Laundry/Storage room. (1.53m x 0.93m)
    With wooden floor and white goods.
  • Utility: Utility room 2.41m x 0.78)
    Utility room with white goods and extra storage.

  • Outside: Large rear garden with side entrance and shed.


Location Map


QR Code

QR code