€325,000

Site on Church Avenue, Blanchardstown, Dublin 15,
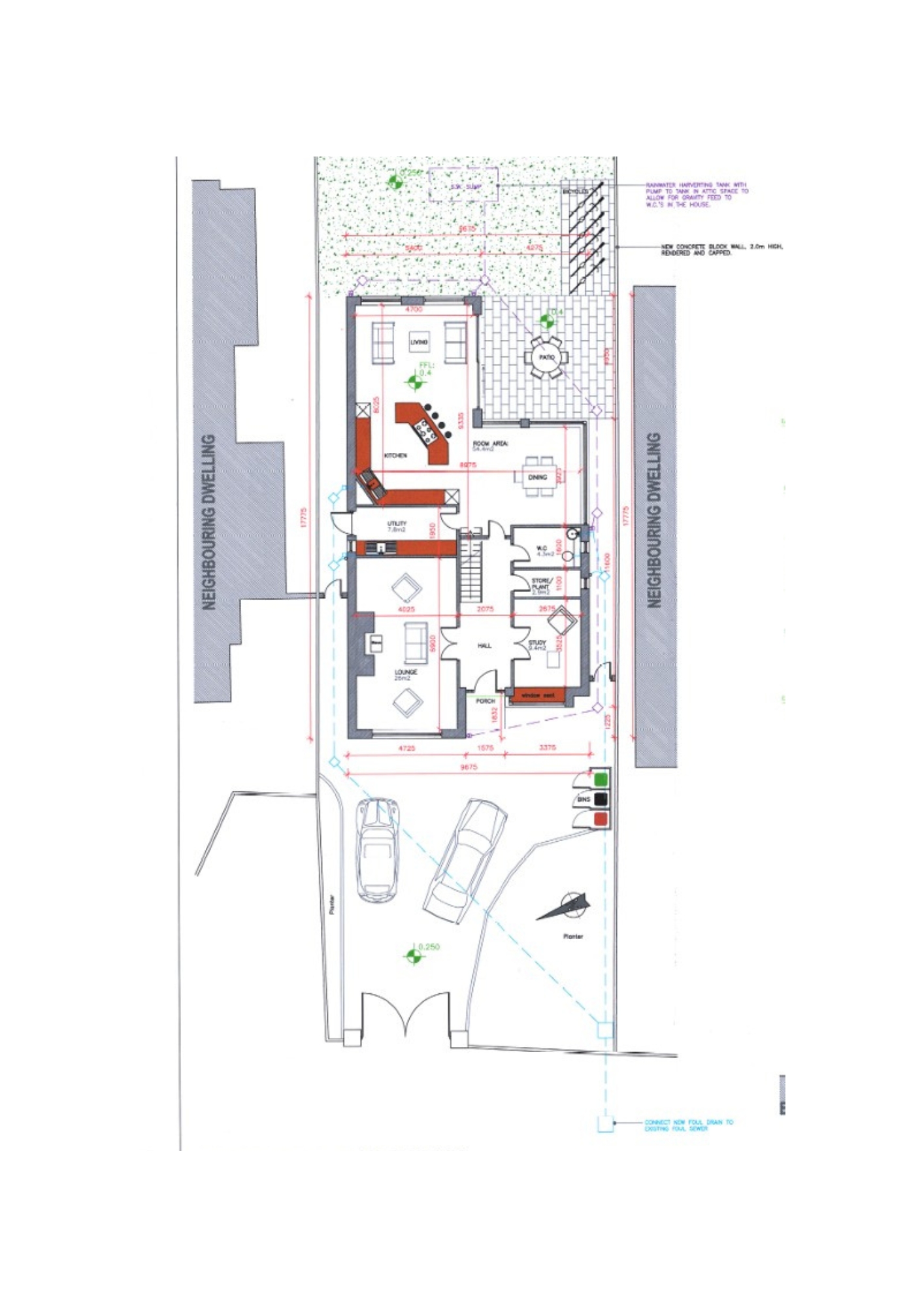
  • Description: Site to the rear of 14 Church Avenue, Blanchardstown, Dublin 15, D15E830 Attention all Developers/Builders this is a unique and rare opportunity to purchase this large shovel ready site to the rear of 14 Church Ave Blanchardstown Dublin 15. This superb site comes with Full Planning Permission for a 4 Bed Detached property with a total floor area of 247 Sq Mts. This attractive site is located next to St Brigids Church and overlooking the playing pitches of St Brigids school. The location is second to none, with Blanchardstown main street with its many amenities literally around the corner.
  • Area: 247
  • Features:


Location Map


QR Code

QR code